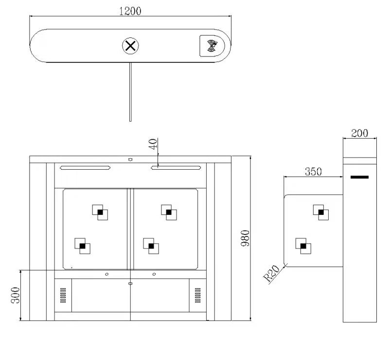
Y-T602 双色幼儿园摆闸
Y-T605桥式摆闸
联系人:刘工
手 机:18932432393
邮 箱:yanchen@yc731.com
公 司:长沙岩晨信息技术有限公司
地 址:长沙芙蓉朝阳路78号